ID объекта : 4622
Тип: Элитка
Этаж: 6/12
Цена: $38 500
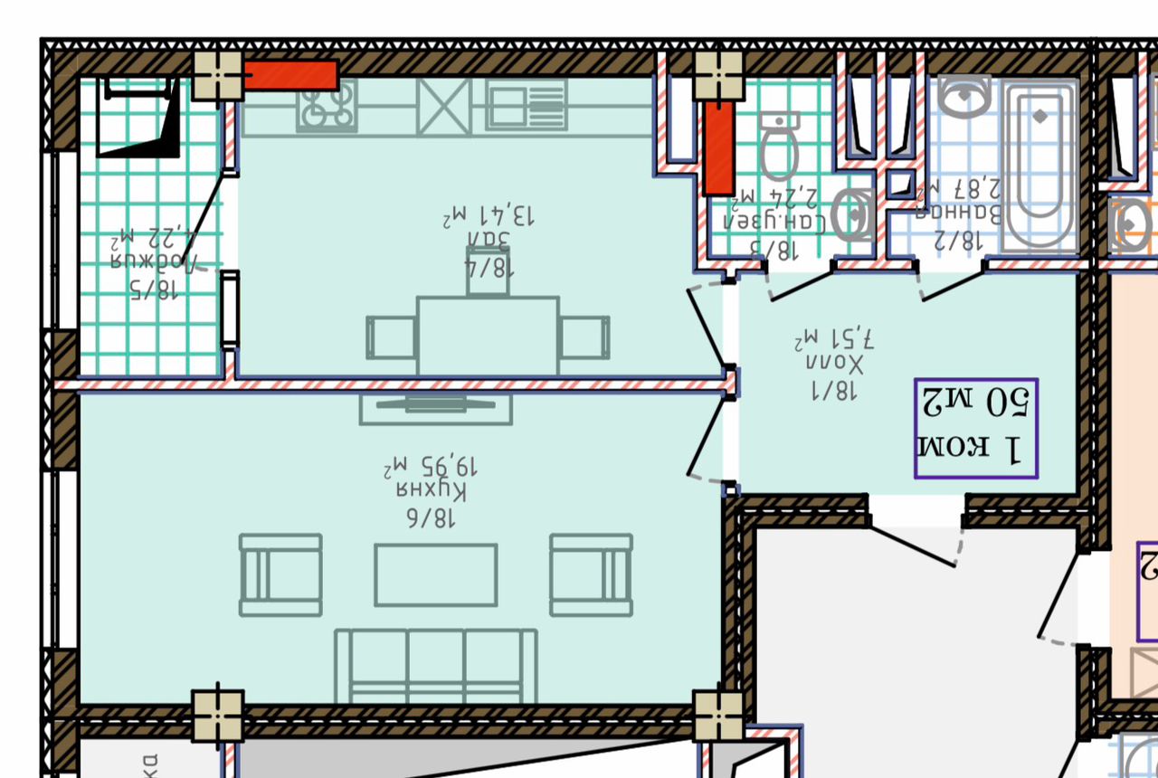
Размер объекта: 50 м2
Комнат: 1
Коммуникации:
Все коммуникации центральные;
Адрес: Моторная 2г
Район: Ошский район
Описание
Продаётся 1-комнатная квартира ПСО в Ошском районе
▪️Элит-Строй | ЖК Раян
▪️ул Моторная 2
▫️Общая площадь: 50м2
▫️Этаж: 6/12 | Блок - В
▫️Документы: дду
▫️Сдача: 4ый квартал 2026г
Цена: 770$ за кв. метр
Телефон: 0701555563
Кыргыз Недвижимость
ID: 4622

